Copyright 1997-2022 浙江恒彩家居装饰有限公司
浙江
前面接到一位业主朋友提问:设计会给到哪些图纸?
相信有很多业主朋友都会有同样的问题。家居装饰行业,作为一个新兴行业,其设计图纸的标准与规范还远不如建筑图纸详细。无论是图纸的格式,还是图纸图例等,现阶段还没有一个严格的统一标准,各公司都有自己不同的表达方式。
虽然没有统一的标准,但家居设计图纸所涉及的种类,一般来讲还是有一定的相同模式的。今天我们就来细细说道说道家装设计需要哪几种图纸。
➣方案图
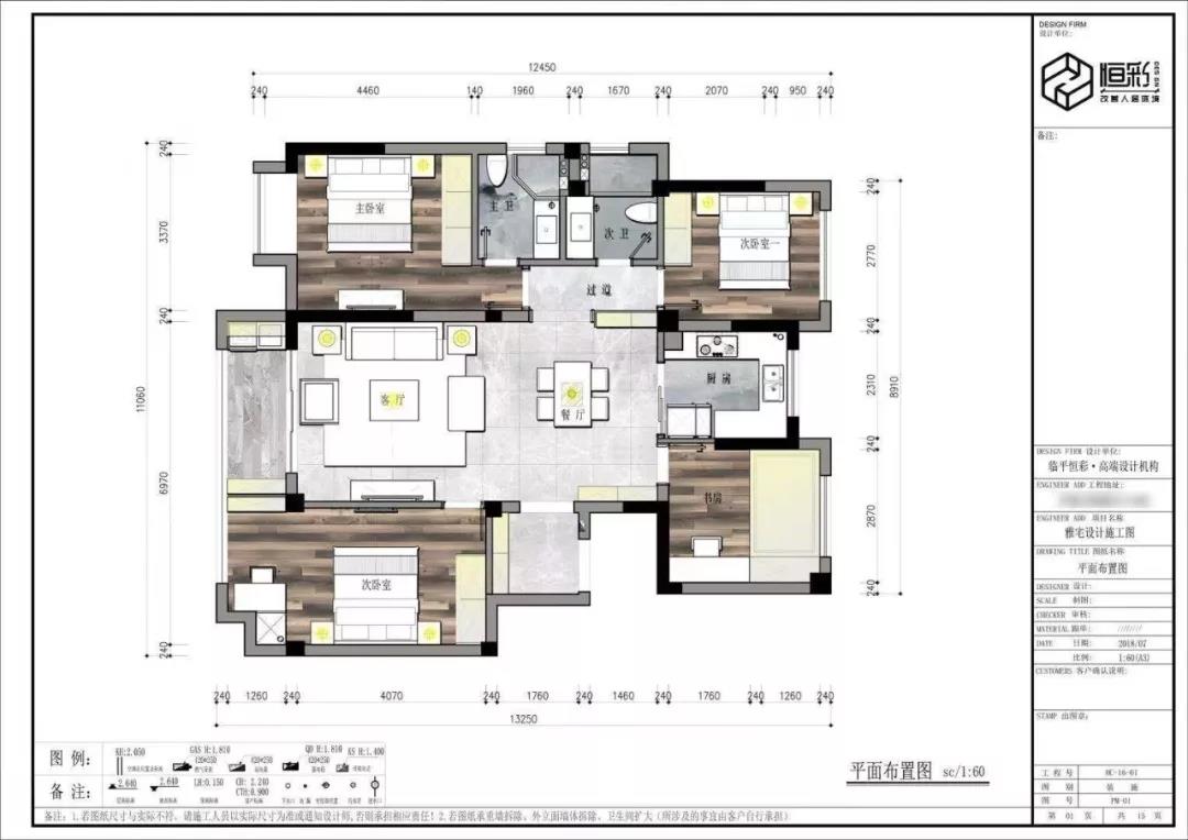
一般来讲,家居设计首先需要方案图。方案图主要包括平面布置图、顶面平面图、墙面展开图等。方案图一般是设计师最早与消费者交流使用的图纸。
在这类图纸里,最重要的就是总平面布置图了。通常,室内总体布局、区域划分、地面材料、人流线组织、家具的摆放位置、拆砌墙示意等众多内容,都会在总平面布置图中体现。

顶面平面图就是天花吊顶的造型与灯具布置等内容的图纸,业主可以通过该图,了解顶面造型是否与空间和谐以及灯具选择的大概情况。
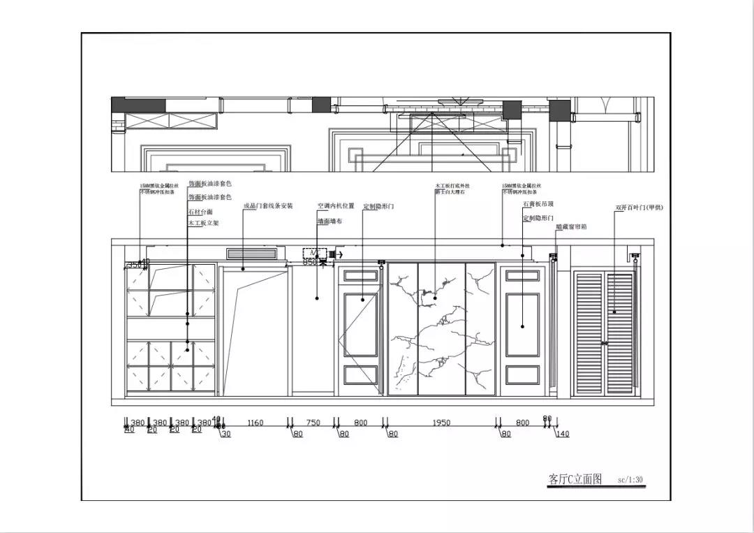
墙面展开图一般表现的是各墙面的立面设计情况。比如电视背景墙的设计风格与造型特点等,都要通过该图得到充分的表达。

客厅C立面图纸参考
虽然,绘制方案图的方法,大多和施工图一样,但一般要比施工图简化很多,一般没有太详细的尺寸与结构表示。也有设计师喜欢用手绘的方法来绘制方案图。
➣效果图
方案图得到认同后,然后需要设计师绘制效果图,也叫透视图。效果图因其直观、逼真的三维立体图面效果,更便于业主理解设计方案的含义。对于装修所选用的材料如家具、灯具、纺织品等,都要有形象的描绘,业主通过效果图,可以感受到工程完成后将呈现的效果。

效果图因绘制时需要付出的精力很多,所以一般仅限于表现比较重要的空间,现在的家居设计,一般需要出效果图的空间主要有客厅、餐厅等重要部分。
➣施工图和剖面详图
效果图通过消费者的认可后,就要进行施工图的绘制。
家居装饰设计是一门综合学科。要完成一个完美的空间,不单要有优秀的设计思想、优良的装饰材料、精湛的施工工艺,在整个工程的施工过程中,理想的空间只有在精确的施工图纸的指导下才能完美得体现出来。
施工图,最简单的理解就是指导施工的图纸。也就是说,是工程正式施工前,由设计人员在图纸上先将工程以一种图纸语言的形式,进行工程施工的演习。虽然是“纸上谈兵”但其作用却绝对是不可低估的。

卫生间立面图纸参考
施工图可以理解为方案图的深化。一般,施工图是在方案图的基础上,对尺寸、材料、施工做法等作进一步的细化与表示。
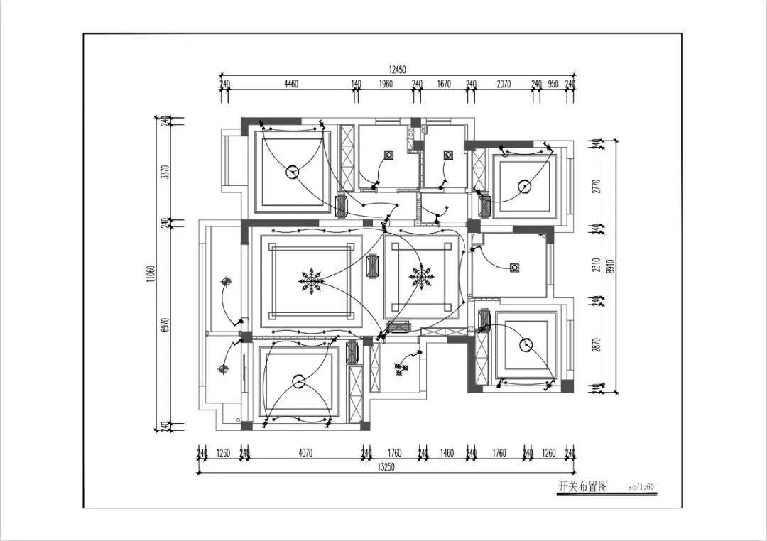
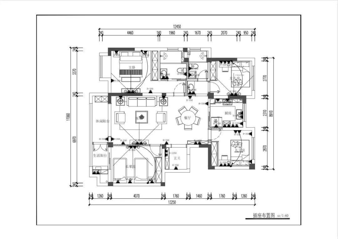
另外,施工图还要包括陈设与设备平面图、给排水平面图、供暖平面图、电气平面图、开关插座布置图、通风系统与空调图等有关专业图纸。

开关布置图纸参考

插座布置图纸参考
通常,施工图要细致入微,除了要有详细尺寸与材料标注的平面、顶面、墙面图纸外,还要对重要结构部分绘制详图。节点图、大样图、剖面图等,都是施工图中对施工方法进行详细说明的语言。

剖面图纸参考
施工图一般来讲不是给业主看的,但施工人员通常必须以其为指导进行施工。俗话说“外行看热闹、内行看门道”,一个设计的好坏,在内行人看来,更重要地是看其施工图的质量与水准。
施工图往往最后决定着工程质量的优劣,故一般好的公司都很注重施工图的绘制。如果施工图绘制不详细、校对审核等过程不完善,都可能造成施工无序、成本核算不清晰等问题,极易产生纠纷。
下一篇:【工艺验收】水电验收标准
装修热线:
Copyright 1997-2022 浙江恒彩家居装饰有限公司